Mile-End Library
Graduate | Undergraduate
Studio | Non-Studio
1st 2nd | 3rd Year, 1st | 2nd Semester | Summer (May 5th-May 28th, 2020)
Partner: Zineb Hameda Benchekroun
Instructor: Vedanta Balbahadur
In this 3-week intensive studio for students on exchange who had to return home due to the coronavirus outbreak, the task was to design a library and creative hub in the Mile-End neighborhood of Montreal. 

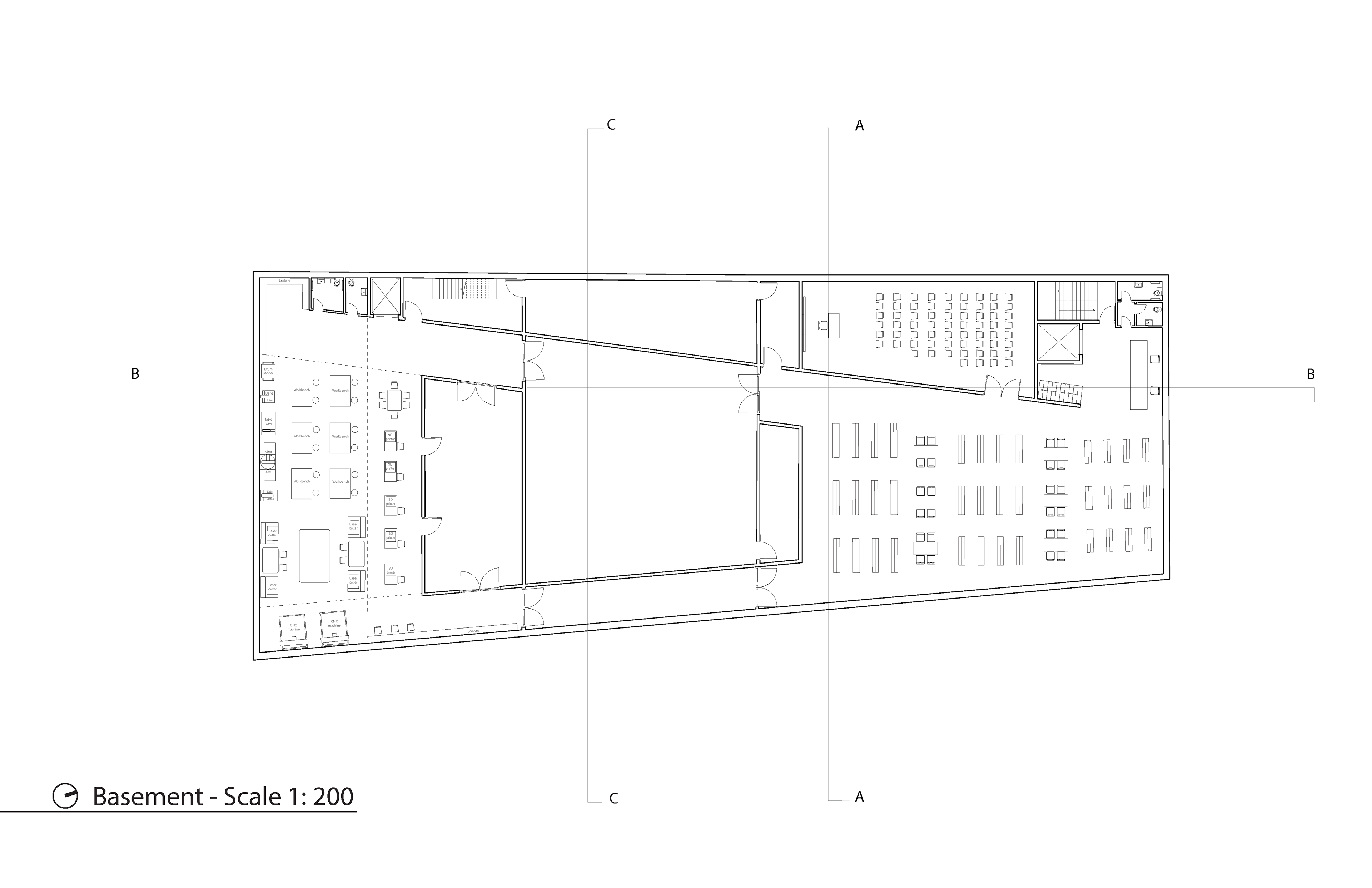
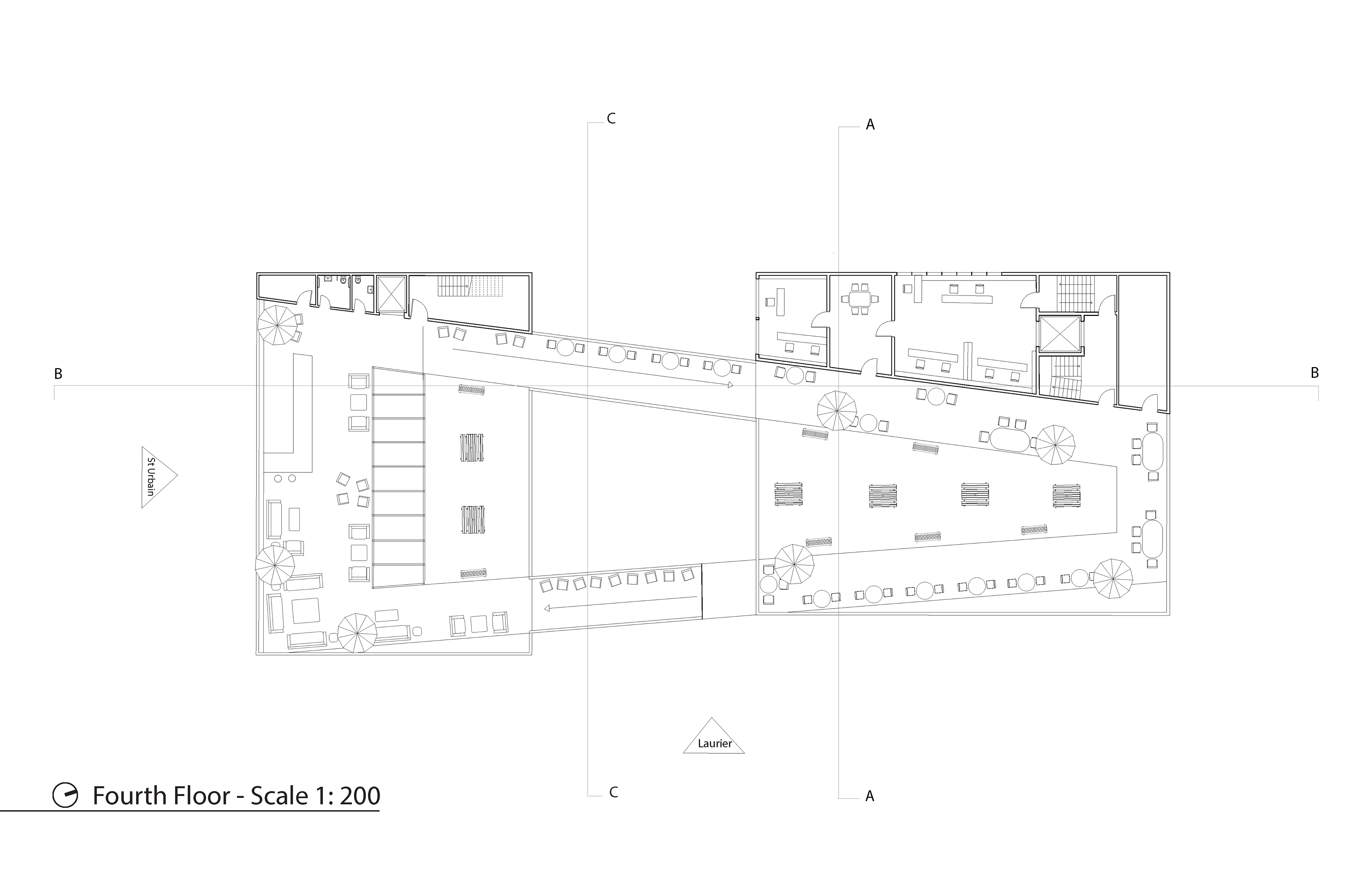
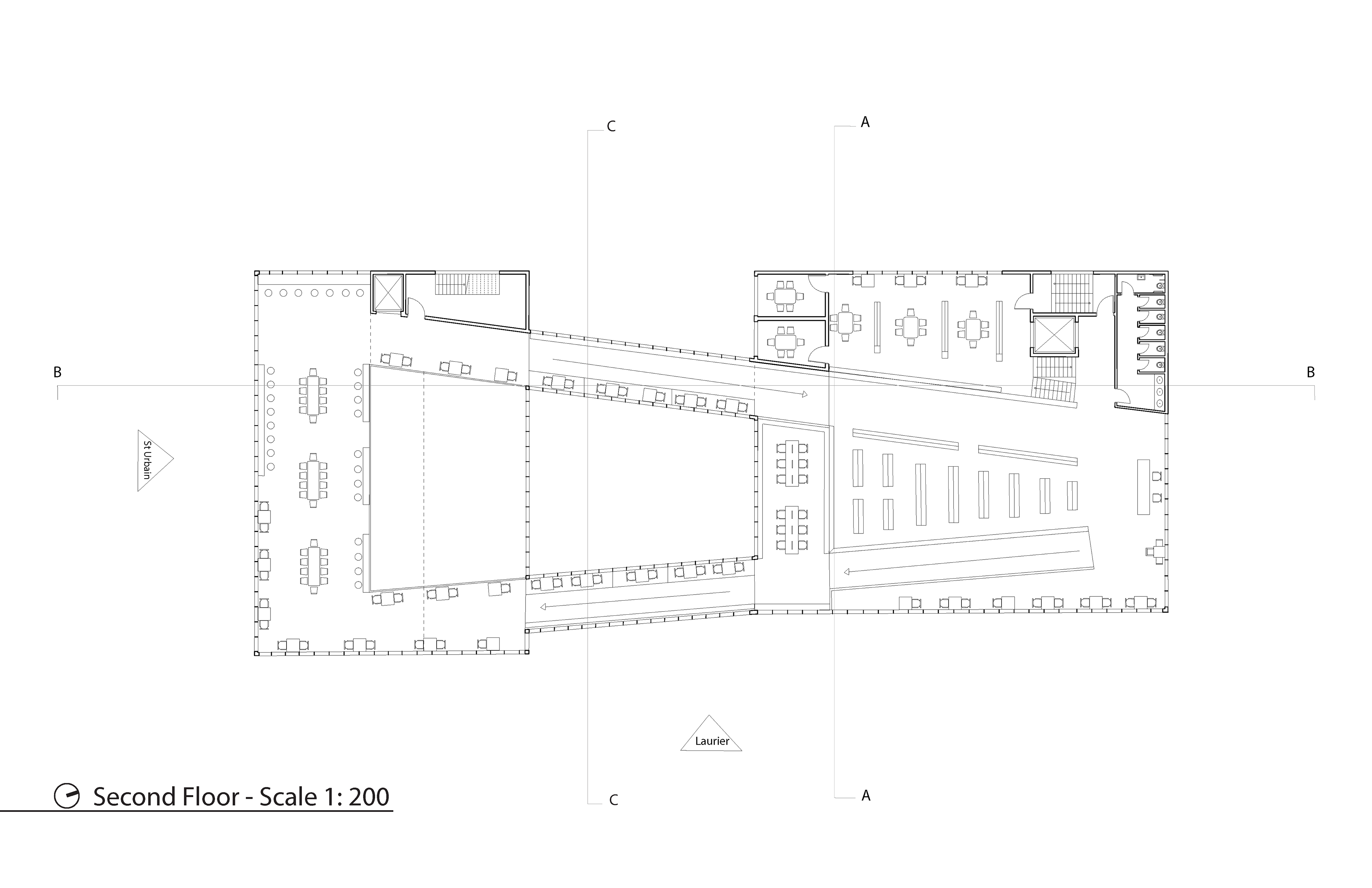
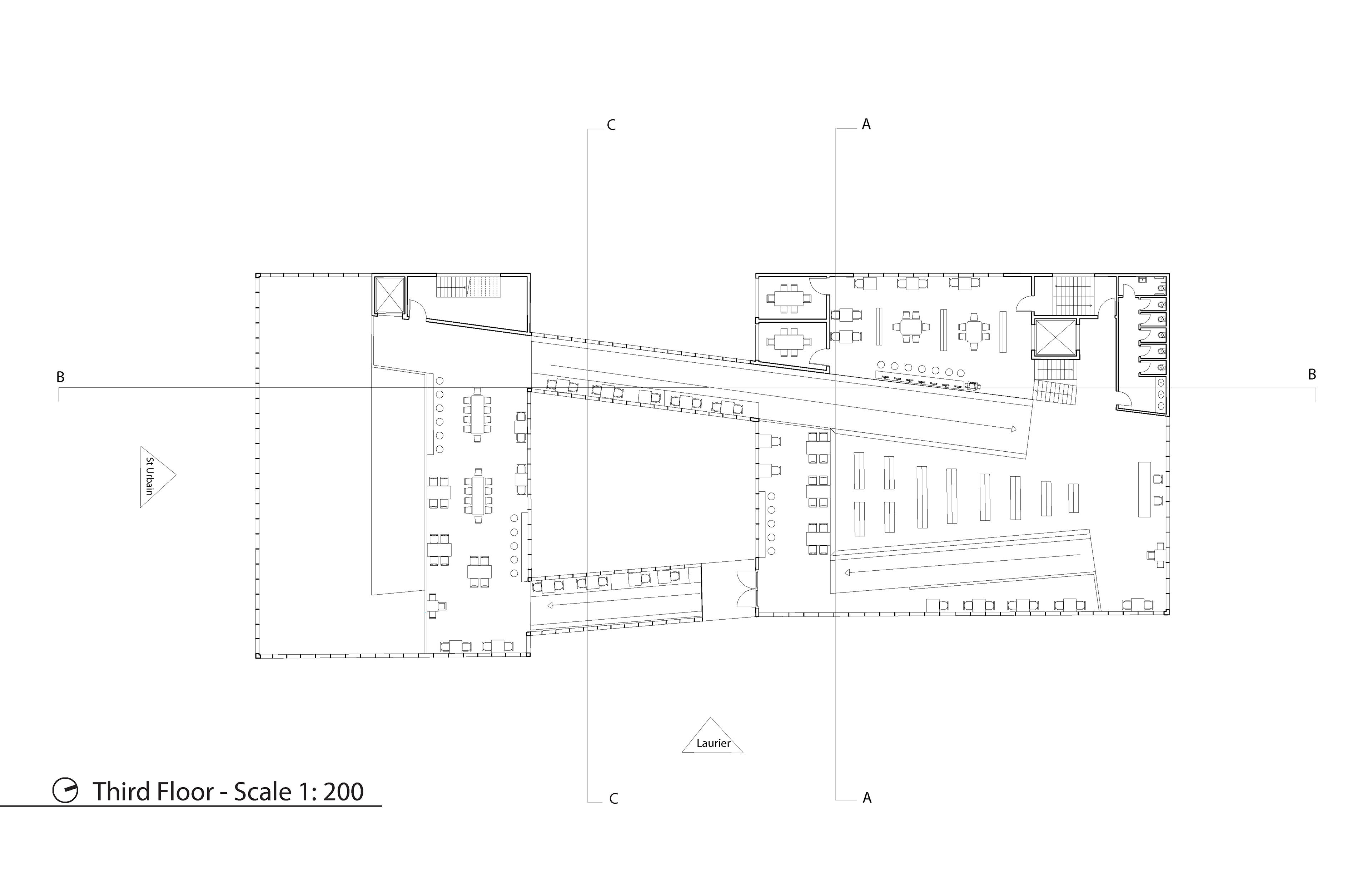
Our library design is efficient, accessible and expands upon the green alley on the site as its centerpiece. 
The library's various programs are arranged into two sections, loud and quiet, and are located in two separate buildings connected by a unique system of sloped floors that circulate through each level of both buildings, culminating at a rooftop terrace. The ramps are angled at a 20-degree slope in order to be fully accessible, and are wide enough to allow for spaces along their periphery to be used to sit and work.
These ramps also allow individuals to seamlessly transition between levels. Our building contains more than a dozen levels, while only having three stories in plan (not including basement & roof).
Back to Top